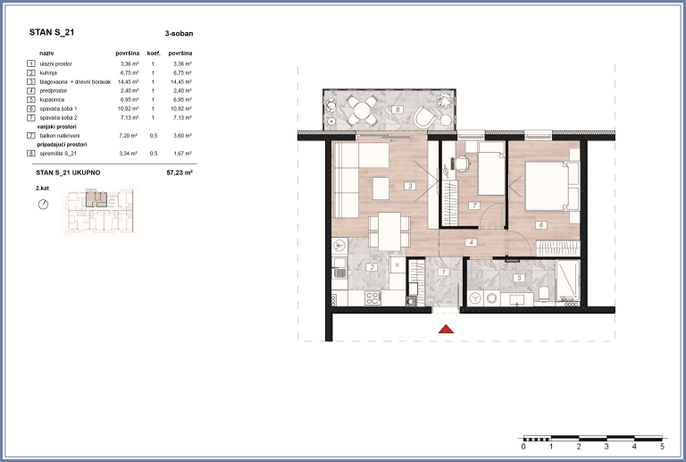
Stan S21

rezervirano

174.551,00 EUR

57.23 m2

broj soba: 3

2. kat

ključ u ruke

Stan je moguće rezervirati uplatom iznosa od 5.000,00 EUR (4.000,00 EUR + PDV).

Katalog stanova

Preuzmite kompletni katalog stanova i pogledajte sve detalje projekta.

Pošaljite upit za ovaj stan

    Stan S21